418 m² moderne Bürofläche zu mieten

Büro / Praxis - Praxis, 1210 Wien

Beschreibung der Immobilie

ca. 418 m² in einem neu erbauten Bürohaus zu mieten

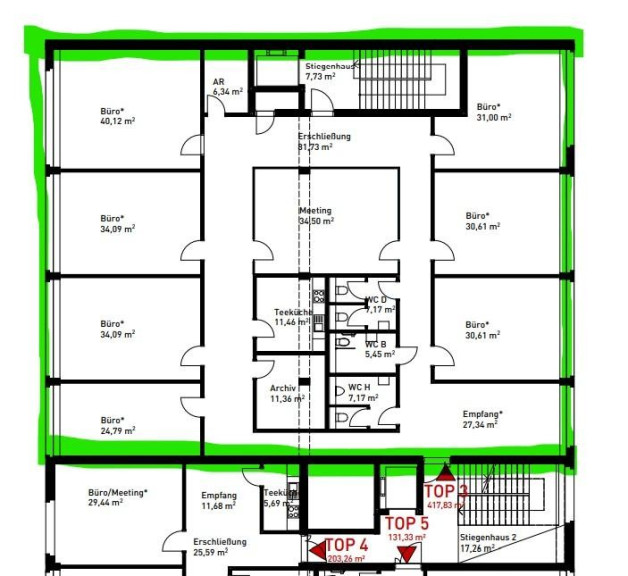
Im 2. OG befindet sich eine Edelrohbaufläche mit einer Gesamtgröße von ca. 418 m², welche evtl. noch nach Kundenwunsch verändert werden kann.
Die Bürofläche kann klimatisiert werden, beheizt wird mit Fernwärme.
Das Objekt verfügt über einen Aufzug, 2 Stiegenhäuser führen zum Büro, Stellplätze wären am Areal.

Öffentliche Erreichbarkeit mittels Bushaltestellen, welche auch zur nahegelegenen S Bahnstation Siemensstraße führen.

Fertigstellung Ende 2023!

Strom und Heizung (Fernwärme werden nach Verbrauch abgerechnet
Angaben gemäß gesetzlichem Erfordernis:
Miete 5852 zzgl 20% USt.
Betriebskosten 836 zzgl 20% USt.
Umsatzsteuer 1337,6
------------------------------------------------------------------
Gesamtbetrag 8025,6

Eckdaten

Objektnr: 2603_14348
Art: Büro / Praxis - Praxis
Land: Österreich
Baujahr: 2023
Zustand: Erstbezug
Alter: Neubau
Gesamtmiete: 8.025,60
Kaltmiete (netto): 5.852,00 €
Kaltmiete: 6.688,00 €
Nutzfläche: 418,00 m²
Bürofläche: 418,00 m²
WC: 2
Immobilie merken Exposé

Ausstattung

Zentralheizung


Internet und TV

Information zur Internet und TV Versorgung hier


Immobilie anfragen


Ihre persönliche Beratung

RE/MAX Commercial Group

Anton Putz

RE/MAX Commercial Group

E a.putz@remax-commercial.at