Großzügige Büroflächen in Bregenz zu vermieten

Büro / Praxis - Bürofläche, 6900 Bregenz

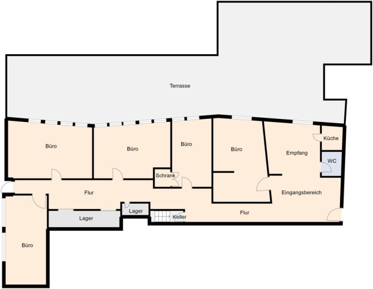
Beschreibung der Immobilie

Bregenz - City
Zentralste Lage
Zu Fuß alle Einrichtungen des tägl. Bedarfes erreichbar
Seenähe
im 3. OG mit Personenlift
Terrasse
Kellerabteil ca. 50m²
Ab sofort verfügbar
Top 80 kann bei Bedarf dazu gemietet werden - ca. 113 m²
2 überdachte Einstellplätze
Provision 2 Bruttomonatsmiete zzgl. 20% MwSt.
Kaution: 3 BMM Bankgarantie oder Bar
Vertragserrichtungskosten
Mietvertragsgebühren
Angaben gemäß gesetzlichem Erfordernis:
Heizwärmebedarf:108.0 kWh/(m²a)
Klasse Heizwärmebedarf:D

Eckdaten

Objektnr: 2552_5388
Art: Büro / Praxis - Bürofläche
Land: Österreich
Nutzfläche: 208,06 m²
Bürofläche: 208,06 m²
Stellplätze: 2
Keller: 54,00 m²
Heizwärmebedarf:  D  108,00 kWh/m²a
Immobilie merken Exposé

Ausstattung

Parkplatz


Internet und TV

Information zur Internet und TV Versorgung hier


Immobilie anfragen


Ihre persönliche Beratung

Mag. Julian Hefel

RE/MAX Immowest

E j.hefel@remax-immowest.at

T +43/5574/53434221