Le Hermann

Wohnung - Etage, 1070 Wien

Beschreibung der Immobilie

Diese außergewöhnliche Immobilie, eine seltene Kombination aus historischem Charme und modernen Wohnkomfort, erwartet Sie in einem Viertel, das weit über die Grenzen Wiens für sein historisches Flair bekannt ist. Das Wohnhaus ist ein elegantes Gebäude aus der Jahrhundertwende, das im Zuge des Ausbaus des Dachgeschosses teilweise erneuert und umfassend saniert wird. Das eindrucksvollen Dachgeschoss, ist in zwei exklusive Wohnungen unterteilt, die ein luxuriöses Wohnambiente bieten.
Die Belle Etage-Wohnung für seine Bewohner ein Domizil der absoluten Spitzenklasse. erstreckt über mehr als 175 m². 4 kleinere 1-2 Zimmerwohnungen, die über ausgezeichnete Grundrisse verfügen, verkörpern das ultimative Stadtleben für jene, die sich danach sehnen mitten im urbanen Treiben von Wien, dennoch in den eigenen vier Wänden eine Ruheoase zu besitzen.
Das Angebot wird mit einer großzügigen und perfekt aufgeteilten Altbau-Erdgeschosswohnung mit alleinigem Garten und einem wunderbaren Wintergarten vervollständigt!
Die Wohnungen beeindrucken mit großzügigen Freiflächen, sowie mit lichten Raumhöhen. Zeitlose Eleganz, hochwertige Materialien und eine Ausstattung, die höchsten Qualitätsansprüchen gerecht wird, versprechen ein Wohngefühl, das keine Wünsche offenlässt. Die Farbgestaltung der Wohnräume in angenehmen, harmonischen Tönen schafft eine Atmosphäre des Wohlbefindens und der Ruhe. In Kombination mit modernster Haustechnik, die sich unaufdringlich und doch wirkungsvoll in das Gesamtbild einfügt, setzen diese Wohnungen Maßstäbe in Sachen Wohnqualität

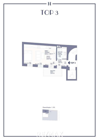
Die Wohnungen:

Im stilvoll und aufwendig sanierten Wiener Altbau "Le Hermann" stehen acht einzigartige Wohneinheiten zur Auswahl, die zwischen 31 m² und 175 m² groß sind.

Jede Wohnung erfüllt höchste Ansprüche an individuelle Grundrissplanung, zeitgemäßen Komfort und attraktive Ausstattung. Die großzügig verglasten Räume, die zu den privaten Freibereichen führen, sind mit Terrassentüren ausgestattet, die einen direkten Zugang ins Freie ermöglichen.

Top 1 Erdgeschoß mit gesamten Hofgarten samt Terrasse und Wintergarten ca. 174 m² ca. 26 m² G verkauft
Top 2 Erdgeschoß ca. 41 m² EUR 349.000,00
Top 3 1.OG Belle Etage mit Balkon ca. 32 m² ca. 6 m² EUR 349.000,00
Top 4 1.OG Belle Etage mit Loggia ca. 175 m² ca. 9 m² EUR 1.599.000,00
Top 5 1.DG mit Balkon ca. 34 m² ca. 5 m² verkauft
Top 6 1.DG mit Loggia ca. 53 m² ca. 9 m² verkauft
Top 7 1.DG + 2.DG mit Wohnterrasse + Dachterrasse ca. 144 m² ca. 14 m² ca. 43 m² EUR 1.680.000,00
Top 8 1.DG + 2.DG mit Wohnterrasse + Dachterrasse ca. 143 m² ca. 31 m² ca. 43 m² EUR 1.769.000,00

Hochwertige Ausstattung für lang anhaltende Wohnfreude:

Um ein dauerhaft angenehmes Wohngefühl zu gewährleisten, wurden modernste Baumaterialien verwendet und qualitativ hochwertige Ausstattungselemente im Innenbereich der schlüsselfertigen Wohneinheiten verbaut. Dazu gehören Markenarmaturen im Badezimmer und WC, Fußbodenheizung, robuste Parkettböden im Wohn- und Essbereich sowie Sicherheitstüren. Dadurch können die Bewohner zu jeder Jahreszeit entspannt den Ausblick genießen.

Das Wohnhaus und das Treppenhaus wurden bereits vollständig saniert und sind in Betrieb genommen worden. Die ersten Wohnungen wurden fertiggestellt und bereits übergeben.

Ein Garagenstellplatz kann nur für Top 4 sowie für Top 7 und Top 8 zum Preis von 45.000 Euro erworben werden! Alle Garagenplätze befinden sich in der Zieglergasse 18, 1070 Wien.

Lage:
U3 Neubaugasse, 13A, 59A
Mariahilfer Straße Fußgängerzone

Die Lage ist urban, schön und dennoch sehr ruhig. Sie ist einzigartig und traumhaft. In einem der bekanntesten Viertel Österreichs finden Sie vielfältige Einkaufsmöglichkeiten und zahlreiche Gastronomiebetriebe.

Anfragen:
Wie bitten um Beachtung, dass wir aufgrund unserer Nachweispflicht gegenüber unseren Auftraggebern ausschließlich Anfragen unter Angabe Ihrer vollständigen Daten (Name, Anschrift, Tel. Nr. e - mail Adresse) bearbeiten können. Weiters weisen wir darauf hin, dass wir strikt nach den seit Juni 2014 geltenden FAGG Richtlinien arbeiten.

Wir informieren Sie darüber, dass wir bei diesem Objekt eine Doppelmaklertätigkeit ausüben. (§ 5 Abs. 3 MaklerG). Weiters weisen wir auf ein wirtschaftliches bzw. persönliches Naheverhältnis zum Abgeber hin.

Nebenkosten:
3,5% Grunderwerbsteuer
1,1% Grundbuchseintragung
3,0 % Vermittlungsprovision zzgl. 20% MwSt.
Vertragserrichtung nach Vereinbarung

Es wird darauf hingewiesen, dass die angeführten Daten auf Informationen des Abgebers oder Dritten (z.B. Behörden) beruhen, sodass für die Richtigkeit und Vollständigkeit keine Gewähr übernommen werden kann!

Eckdaten

Objektnr: 1662_2947
Art: Wohnung - Etage
Land: Österreich
Baujahr: ca. 2023
Zustand: Erstbezug
Alter: Altbau
Kaufpreis: 349.000,00
Provision: 3.00 %
Wohnfläche: 31,93 m²
Zimmer: 1
Bäder: 1
WC: 1
Balkone: 1
Keller: 2,94 m²
Heizwärmebedarf:  B  36,00 kWh/m²a
fGEE:  A+  0,60
Immobilie merken Exposé

Ausstattung

Gas, Zentralheizung, Personenaufzug


Internet und TV

Information zur Internet und TV Versorgung hier


Immobilie anfragen


Ihre persönliche Beratung

Martin Meindl

RE/MAX 4You in Wien-Hernals

E mm@remax-4you.at

H +4369917251885