Praxis / Ordination / Geschäft in zentraler Lage zu mieten

Einzelhandel - Ladenlokal, 4360 Grein

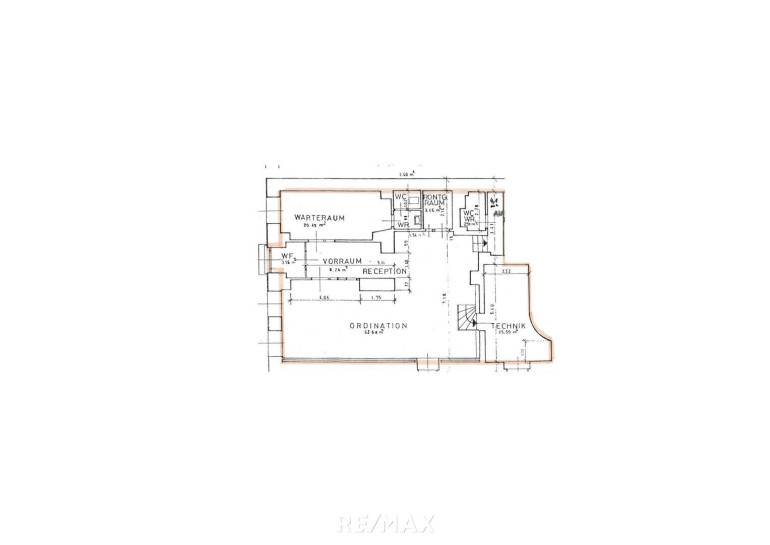
Beschreibung der Immobilie

Bitte beachten Sie, dass Besichtigungen auf Grund von Urlaub erst wieder ab 29.09.2025 vereinbart werden können!

* Zahnarzt-Praxis
* Arzt-Praxis
* Ordination
* Massageinstitut
* Tierarzt-Praxis
* Geschäftslokal
* Grein an der Donau
* in einer zentralen, hochwassersicheren Lage gelegen
* gut geeignet als Geschäftslokal oder Praxis
* ca. 122 m² Nutzfläche
* Windfang, Vorraum, Warteraum, Ordination, Röntgenraum, Technikraum, 2 WC´s
* Zentralheizung mit Fernwärme
* HWB: 149; fGEE: 1,36



Miete: € 1.600,00
Netto-Betriebskosten: € 208,33
20% Umsatzsteuer: € 41,67
Gesamtmiete: € 1.850,00

Mietnebenkosten:
Provision: 3 BMM zzgl. 20% Umsatzsteuer
Kaution: € 4.800,-
Mietvertragsvergebührung: 1% des auf die Vertragsdauer entfallenden Bruttomietzinses (inkl. MWSt.)
Angaben gemäß gesetzlichem Erfordernis:
Miete 1600
Betriebskosten 208,33 zzgl 20% USt.
Umsatzsteuer 41,67
------------------------------------------------------------------
Gesamtbetrag 1850
------------------------------------------------------------------
Heizwärmebedarf:149.0 kWh/(m²a)
Faktor Gesamtenergieeffizienz:1.36

Sie überlegen Ihre Immobilie zu verkaufen oder zu vermieten?
Makler? Macht Sinn! Am Besten gleich zur Nr. 1.
Jetzt kostenlosen Beratungstermin vereinbaren unter 07472/646 80.

Eckdaten

Objektnr: 1603_7044
Art: Einzelhandel - Ladenlokal
Land: Österreich
Gesamtmiete: 1.850,00
Kaltmiete (netto): 1.600,00 €
Kaltmiete: 1.808,33 €
Provision: 3.00 MM
Nutzfläche: 122,00 m²
Verkaufsfläche: 122,00 m²
WC: 2
Heizwärmebedarf: 149,00 kWh/m²a
fGEE: 1,36
Immobilie merken Exposé

Ausstattung

Zentralheizung


Internet und TV

Information zur Internet und TV Versorgung hier


Immobilie anfragen


Ihre persönliche Beratung

RE/MAX Immo-Team in Amstetten

Ing. Hannes Gstöttenbauer, MBA

RE/MAX Immo-Team in Amstetten

E h.gstoettenbauer@remax-immoteam.at

T +43 7472/6468069

H +43664 883 135 88