Schöne Singlewohnung mit Loggia!
Wohnung
- Etage,
4432
Ernsthofen
Beschreibung der Immobilie
* im Ortszentrum
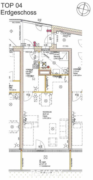
* Erdgeschoss
* ca. 41 m² Wohnfläche
* Loggia
* Vorraum, Wohn- Schlafraum, Bad/WC
* Pkw-Abstellplatz
* Zentralheizung mit Fernwärme
* Fußbodenheizung
* kontrollierte Wohnraumlüftung
* Kellerabteil
* Lift
* barrierefrei
* Mietvertragsbefristung: 3 Jahre
* verfügbar nach Vereinbarung
* HWB: 30,2
* fGEE: 0,72
Gesamtmiete: € 467,74
inklusive Betriebs- und Heizkosten
Mietnebenkosten:
Finanzierungsbeitrag: € 6.420,-
Betreuungsentgelt betreutes Wohnen: € 54,-
Hinweis für Mietinteressenten:
Wir sind vom Vermieter dieser Immobilie mit der Vermittlung eines Mietvertrages beauftragt. Deshalb ist es uns gemäß§ 17 a Maklergesetz untersagt, mit Ihnen als Mietinteressent eine Provisionsvereinbarung zu schließen.
Das bedeutet für Sie:
Wir sind ausschließlich im Auftrag des Verfügungsberechtigten und nicht als Doppelmakler tätig. Sie gehen bezüglich dieser Immobilie und Ihrer Mietabsicht mit uns KEIN Vertragsverhältnis ein und werden von uns diesbezüglich KEINE Rechnung erhalten.
| Angaben gemäß gesetzlichem Erfordernis: | |||
| Miete | € | 467,74 | |
| Umsatzsteuer | € | 0 | |
| ------------------------------------------------------------------ | |||
| Gesamtbetrag | € | 467,74 | |
| ------------------------------------------------------------------ | |||
| Heizwärmebedarf: | 30.2 kWh/(m²a) | ||
| Klasse Heizwärmebedarf: | B | ||
| Faktor Gesamtenergieeffizienz: | 0.72 | ||
| Klasse Faktor Gesamtenergieeffizienz: | A+ | ||
Sie überlegen Ihre Immobilie zu verkaufen oder zu vermieten?
Makler? Macht Sinn! Am Besten gleich zur Nr. 1.
Jetzt kostenlosen Beratungstermin vereinbaren unter 07472/646 80.
Eckdaten
| Objektnr: | 1603_7509 |
| Art: | Wohnung - Etage |
| Land: | Österreich |
| Baujahr: | ca. 2009 |
| Gesamtmiete: | 467,74 € |
| Kaltmiete (netto): | 467,74 € |
| Kaltmiete: | 467,74 € |
| Wohnfläche: | 41,00 m² |
| Zimmer: | 1 |
| Bäder: | 1 |
| WC: | 1 |
| Stellplätze: | 1 |
| Keller: | 4,50 m² |
| Heizwärmebedarf: | B 30,20 kWh/m²a |
| fGEE: | A+ 0,72 |
Ausstattung
Zentralheizung, Personenaufzug, Parkplatz
Internet und TV
Information zur Internet und TV Versorgung hier
Ihre persönliche Beratung
Daniela Mayrhofer
RE/MAX Immo-Team in Amstetten
E office@remax-immoteam.at
T +43 7472/64680
H +43 664 881 673 70