Ideale Gemeinschaftspraxis für medizinische und therapeutische Dienstleistungen – ruhig gelegen mitten im Grünen!
Halle / Lager / Produktion
- Produktion,
4730
Waizenkirchen
Beschreibung der Immobilie
Exklusiv und hochwertig präsentieren sich die neu errichteten Praxis-Büro-Räumlichkeiten unweit
des Ortszentrums von Waizenkirchen in einer ruhigen Dorfrandlage.
Die Räumlichkeiten sind besonders geeignet medizinische und therapeutische Dienstleistungen,
als Arztpraxis, Coaching, Workshops, Gruppentherapie sowie generell als Büro- oder Kanzleiräume.
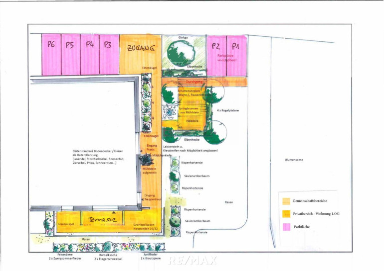
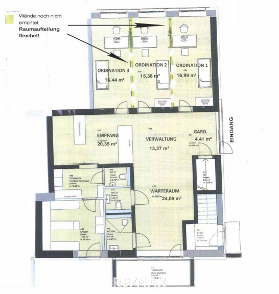
Der Empfang und Wartebereich ist modern und ansprechend gestaltet. Für Ihre Kunden und Patienten
sowie Mitarbeiter steht auch ein sehr attraktiv gestalteter Außenbereich mit Terrasse zur Verfügung.
Sie werden sich wohlfühlen!
Die Raumaufteilung sowie andere Gestaltungselemente sind in Teilbereichen noch flexibel gestaltbar.
Für Fragen steht Ihnen unsere Ansprechpartner gerne zur Verfügung!
Gerne könne Sie unverbindlich einen Besichtigungstermin vereinbaren.
BITTE BEACHTEN SIE, dass wir aufgrund der Nachweispflicht gegenüber dem Eigentümer nur Anfragen mit vollständiger Angabe des Namens,
der Wohnadresse sowie der Telefonnummer bearbeiten können. Gerne senden wir Ihnen ein kostenloses Detailangebot mit weiteren Informationen zu.
Unverbindliche Unterlagen:
Die angegebenen Informationen sind nach bestem Wissen erstellt, Druck- bzw. Redaktionsfehler oder Irrtümer vorbehalten.
Für Angaben, Auskünfte und Flächen, die uns von Eigentümerseite bzw. Dritten zur Verfügung gestellt wurden, können wir keine Haftung übernehmen.
| Angaben gemäß gesetzlichem Erfordernis: | |||
| Miete | € | 1550 | zzgl 20% USt. |
| Betriebskosten | € | 100 | |
| Heizkosten | € | 125 | |
| Umsatzsteuer | € | 310 | |
| ------------------------------------------------------------------ | |||
| Gesamtbetrag | € | 2085 | |
| ------------------------------------------------------------------ | |||
| Heizwärmebedarf: | 40.08 kWh/(m²a) | ||
| Klasse Heizwärmebedarf: | B | ||
| Faktor Gesamtenergieeffizienz: | 0.77 | ||
| Klasse Faktor Gesamtenergieeffizienz: | A | ||
Eckdaten
| Objektnr: | 3777_315 |
| Art: | Halle / Lager / Produktion - Produktion |
| Land: | Österreich |
| Baujahr: | 2024 |
| Zustand: | Gepflegt |
| Alter: | Neubau |
| Gesamtmiete: | 2.085,00 € |
| Kaltmiete (netto): | 1.550,00 € |
| Kaltmiete: | 1.650,00 € |
| Nutzfläche: | 155,00 m² |
| Heizwärmebedarf: | B 40,00 kWh/m²a |
| fGEE: | A 0,77 |
Internet und TV
Information zur Internet und TV Versorgung hier
Ihre persönliche Beratung
Ing. Mag. Andreas Aumayr
RE/MAX Bonus
E a.aumayr@remax-bonus.at
T 67072
H +43 660 48 12 970