Nur noch 4 Wohnungen verfügbar

Wohnung , 6116 Weer

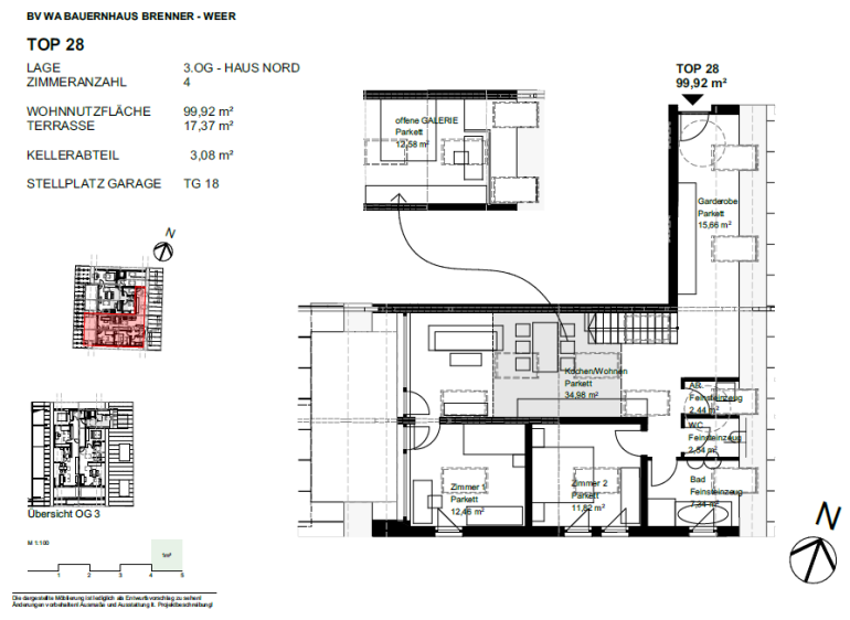
Beschreibung der Immobilie

Weer - Neubauprojekt Moarhofweg 8 und 10

  • Architektur im Tiroler Stil
  • Kleine Anlage mit 2 Häusern
  • Nur noch einzelne Einheiten verfügbar
  • Balkon, Terrasse oder Garten
  • Tiefgarage
  • Allgemeinräume
  • Wärmepumpe
  • Lift
  • Ruhige Lage

Die Bau- und Ausstattungsbeschreibung, weitere Pläne sowie die Preise der verfügbaren Wohnungen senden wir gerne auf Anfrage zu und freuen uns über Ihre Kontaktaufnahme.

Eckdaten

Objektnr: 0013000232
Art: Wohnung
Land: Österreich
Baujahr: 2025
Kaufpreis: 344.200,00
Kaufpreis / m²: auf Anfrage
Betriebskosten: 240,00 €
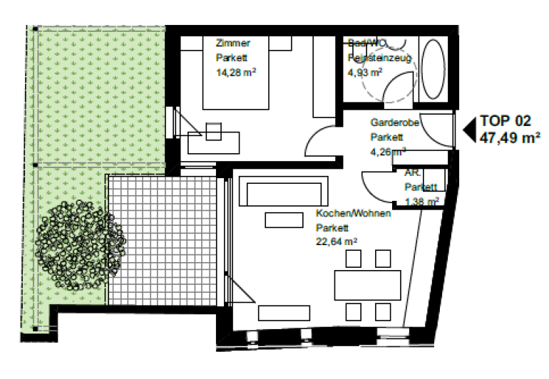
Wohnfläche: 45,00 m²
Garten: 20,00 m²
Keller: 3,00 m²
Heizwärmebedarf:  B  26,90 kWh/m²a
fGEE:  A+  0,64
Immobilie merken Exposé

Ausstattung

Fußbodenheizung


Internet und TV

Information zur Internet und TV Versorgung hier


Immobilie anfragen


Ihre persönliche Beratung

Raiffeisen Regionalbank Schwaz-Wattens eGen Immobilien

Team Gasser & Gasser

Raiffeisen Tirol Schwaz

E immobilien@rrb-schwaz-wattens.at

T 5242698056065