562 m² Nutzfläche! Viel Platz zum Wohnen und Arbeiten: Geschäftslokal mit Wohneinheit in Sulz
Haus
- Einfamilienhaus,
6832
Sulz
Beschreibung der Immobilie
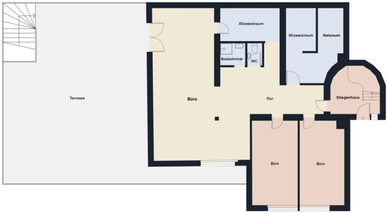
ca. 311 m² Lager-; Produktions- und Bürofläche
ca. 132 m² Wohnfläche
ca. 132 m² Balkone und Terrassen
ca. 130 m² ausbaufähiger Dachboden
Dieses Geschäftshaus in Sulz bietet eine günstige Lage für unterschiedliche Nutzungsmöglichkeiten. Mit einer Gewerbefläche von ca. 311 m², einer Wohnfläche von ca. 132 m² und einem ausbaufähigen Dachboden in der Größe von ca. 130 m² lassen sich Wohnen und Arbeiten prima vereinen. Das Haus ist sehr gut gepflegt und mit einer neuen Küche sowie Tischlereinbauten ausgestattet, die zusätzlichen Stauraum bieten.
Die Verkehrsanbindung dieser Immobilie ist optimal, was eine bequeme Erreichbarkeit mit öffentlichen Verkehrsmitteln und dem Auto ermöglicht. Darüber hinaus profitiert der Standort von nahegelegenen Skigebieten und Bademöglichkeiten.
Dieses Geschäftshaus bietet eine funktionale Kombination aus Arbeits- und Wohnfläche und richtet sich an Interessenten, die eine Lage mit gutem Zugang und Komfort wünschen. Für weitere Informationen zur Immobilie in Sulz stehen wir Ihnen gerne zur Verfügung.
- 3,5% Grunderwerbsteuer
- 1,1% Grundbuchseintragung
- 3,0% Vermittlungsprovision zzgl. 20% MwSt.
- Vertragserrichtungskosten
- Beglaubigungskosten + Barauslagen
| Angaben gemäß gesetzlichem Erfordernis: | |||
| Heizwärmebedarf: | 144.0 kWh/(m²a) | ||
| Klasse Heizwärmebedarf: | D | ||
| Faktor Gesamtenergieeffizienz: | 1.67 | ||
| Klasse Faktor Gesamtenergieeffizienz: | C | ||
Eckdaten
| Objektnr: | 2552_5711 |
| Art: | Haus - Einfamilienhaus |
| Land: | Österreich |
| Baujahr: | 1977 |
| Zustand: | Gepflegt |
| Kaufpreis: | auf Anfrage |
| Provision: | 3.00 % |
| Wohnfläche: | 132,00 m² |
| Grundstücksfl.: | 850,00 m² |
| Bäder: | 1 |
| Stellplätze: | 6 |
| Heizwärmebedarf: | D 144,00 kWh/m²a |
| fGEE: | C 1,67 |
Ausstattung
Parkplatz
Internet und TV
Information zur Internet und TV Versorgung hier
Ihre persönliche Beratung
Reinhard Götze
RE/MAX Immowest
E r.goetze@remax-immowest.at
T +43/5574/53434210
H +43 664/4437058